Property Details
County: Baltimore
Leasing Office
215 Caraway Rd
Reisterstown, MD 21136
Leasing Office Hours
M-F 9-5
Sat. appts only
Sat. appts only
Apartment Community Overview
Our new swimming pool and fitness center are open for all residents to enjoy. We already had the most space for the price - featuring huge apartments, many with two bathrooms. Now we are further improving your living experience with the addition of the new amenities. Call today to schedule your tour!
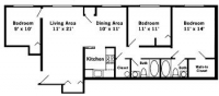
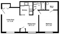
Models and Rental Information
Apartment Features
Community Details
- 24 hour emergency maintenance
- Storage facilities
- Laundry centers in each building
- Brand new swimming pool and fitness center
- Business Center Services available
Kitchen Amenities
- Refrigerator
- Fully equipped eat-in kitchens
Apartment Features
- Carpeting
- Individually controlled heat and air conditioning
- Spacious dining area
- Master bedroom with roomy walk-in closet
- Verticals and mini-blinds for privacy
Utilities
- Cable ready
- High speed Internet access available
Pet Policy
- Pets welcome
- Max pet weight: 30 lbs
Parking & Transportation
- Ample free parking
Additional Comments
- Excellent location just off I-795
- Located on M-9 bus line
For more information about Butler Ridge Reisterstown, MD call 877-356-0646



