advertiser login
|
feedback
Google+
Home
>
DC Apartments
>
Washington Apartments
>
Mount Vernon Plaza
>
Floorplans
Property Overview
Neighborhood Information
Printable Brochure
Map & Directions
Mount Vernon Plaza
930 M Street Northwest
Washington
,
DC
20001
Phone:
888-705-0397
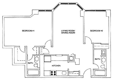
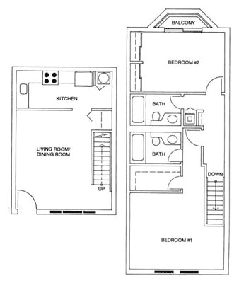
Floorplans
Image
Model Name
1 Bedroom
2 Bedroom
2 Bedroom
2 Bedroom
2 Bedroom
2 Bedroom
2 Bedroom
2 Bedroom Duplex
2 Bedroom Townhouse